Wohnungen 

mit Terrasse und Garten

Visualisierung

Wohnen im Grünen

auf einer Ebene

Die Gartenwohnungen im Erdgeschoß verbinden komfortables Wohnen mit einem privaten Außenbereich und schaffen ein besonders angenehmes Wohngefühl. Die direkte Verbindung von Innen- und Außenraum sorgt für fließende Übergänge und erweitert den Wohnbereich auf natürliche Weise. Großzügige Terrassen und Eigengärten bieten Raum für Erholung, Bewegung und individuelle Gestaltung. Ob als ruhiger Rückzugsort für gesellige Stunden oder als Spielbereich für Kinder – der eigene Garten wird zum wertvollen Bestandteil des täglichen Lebens.

  • Visualisierung

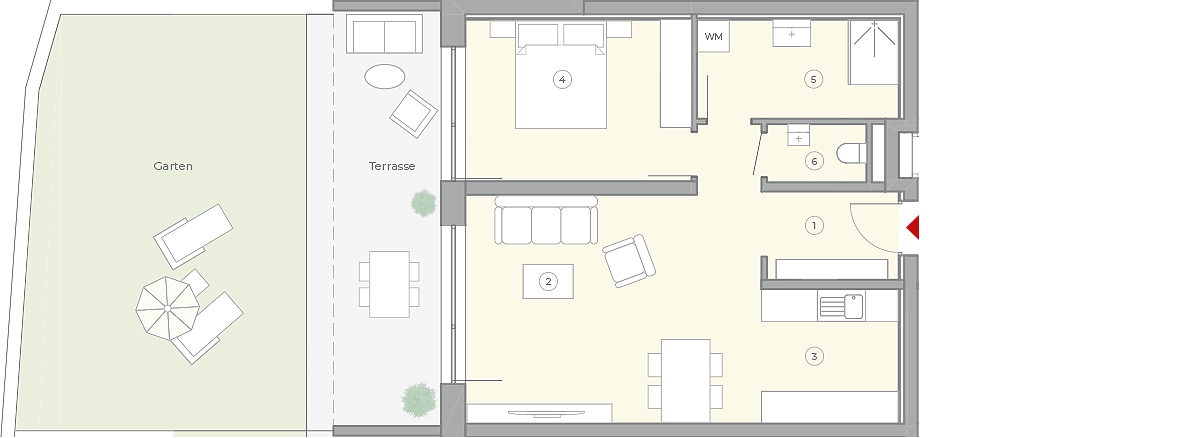
Durchdachte Grundrisse

mit hoher Alltagstauglichkeit

Alle Gartenwohnungen überzeugen durch klar strukturierte Grundrisse und eine funktionale Raumaufteilung. Der Wohn-, Koch- und Essbereich bildet den Mittelpunkt und öffnet sich direkt in den Außenbereich.

Je nach Größe bieten die Wohnungen ausreichend Platz für unterschiedliche Lebenssituationen – von kompakten Einheiten für Paare bis hin zu großzügigen Wohnungen für Familien oder für Wohnen mit Homeoffice. Die Ausführung auf einer Ebene sorgt dabei für zusätzlichen Komfort und eine besonders unkomplizierte Nutzung im Alltag.

 

 

 

Die Grundrisse

Wohnungen mit GARTEN

Schilterner Straße 62, 3550 Langenlois

Wohnung Geschoß Wohnfläche Zimmer Terrasse Garten Kaufpreis €
Top 1 EG 59,16 m² 2 20,32 m² 34,00 m² Verkauft
Top 2 EG 57,06 m² 2 19,30 m² 37,00 m² Reserviert
Top 3 EG 57,14 m² 2 19,28 m² 38,00 m² 259.800,–
Top 4 EG 80,46 m² 3 23,56 m² 52,00 m² Verkauft
Top 6 EG 114,18 m² 4 40,39 m² 229,00 m² 474.800,–

TIEFGARAGENPLATZ: Kaufpreis € 20.000,-

Hinweise zu den Wohnungsplänen: Die Einrichtungsvorschläge (Innenräume, Terrassen, Balkone, Gärten) sind nicht Bestandteil der Bau- und Ausstattungsbeschreibung. Weitere Hinweise sowie hochauflösende Wohnungspläne finden Sie im “Exposé VineyardHOMES Langenlois".

Expose Vineyardhomes Langenlois

Top 2

2 Zimmer / EG

  • Wohnfl. m²57,06
  • Terrasse m²19,30
  • Garten m²37,00
  • Kaufpreis €259.400,–
Zur Liste

Top 3

2 Zimmer / EG

  • Wohnfl. m²57,14
  • Terrasse m²19,28
  • Garten m²38,00
  • Kaufpreis €259.800,–
Zur Liste

Top 6

4 Zimmer / EG

  • Wohnfl. m²114,18
  • Terrasse m²40,39
  • Garten m²229,00
  • Kaufpreis €474.800,–
Zur Liste
  • Symbolbild

Ausstattung und Haustechnik

Hochwertige Materialien, moderne Haustechnik und eine sorgfältige Ausführung schaffen ein Wohnumfeld, das Komfort und Nachhaltigkeit vereint. Von der energieeffizienten Wärmepumpe bis hin zu langlebigen Oberflächen wurde auf eine ausgewogene Qualität in allen Bereichen geachtet. Erfahren Sie mehr über die Details der Ausstattung und Bauausführung der VineyardHOMES-Wohnungen.

Zur Ausstattung & Haustechnik

 

Der Standort

 

Kaufnebenkosten,

Downloads, Kontakt

  1. Kaufnebenkosten

    Maklerprovision:
    Keine, Kauf direkt vom Bauträger

    Grunderwerbssteuer:
    3,5% des Kaufpreises

    Grundbucheintragungsgebühr:
    1,1% des Kaufpreises

    Kaufvertragsabwicklung:
    1,5 % des Kaufpreises (maximal € 6.000,-)
    zzgl. 20 % USt., Barauslagen € 300,- zzgl. 20 % USt.
    Notariat 3620 Spitz / Donau
    Mag. iur. Kerstin Friedrich

  2. Downloads

Kontakt E-Mail

Datenschutzhinweis:

Mit der Nutzung des Kontaktformulars stimmen Sie der Übermittlung und temporären Speicherung Ihrer personenbezogenen Daten zwecks Bearbeitung Ihrer Anfrage und für den Fall von Anschlussfragen zu. Weitere Informationen finden Sie in der Datenschutzerklärung.

Kontakt Telefon

Beratung, Besichtigung, Verkauf:
Petra Höpfner
+43 676 550 39 40
Heilig Immobilien GmbH
Am Südblick 7 / Top 4
3550 Langenlois
Österreich